1.0   2.0  

The making of the second interior design for ALS Pseudopod & Bassoon store

Overview   Process  

Taking down the old shelves first.

00lif2 break

Clear, though not much space there.

01lif2 clear

First design idea—four rotating chests.

02lif2 plan
04lif2 sketch

These could be kept turned around at night.

05lif2 sketch

Not too convenient and very bulky. Going for a different design—fixed shelves and a closing screen.

14lif2 sketch
15lif2 sketch

Better. But not enough space for goods on display and storage. Chests for storing should be larger.

16lif2 sketch

Chests made carriage-type so the merchandise would be closer to customers.

24lif2 sketch
25lif2 sketch

At night, rolled back inside behind the shutters.

26lif2 sketch

Chest design draft.

27lif2

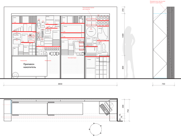
Trying to arrange the goods.

22lif2 plan

And the name.

28lif2 title

Order a design...