For the past hundred years, residential housing in Russia has been built according to standard projects: Moscow, Saint Petersburg, old provincial and industrial cities are full of Khrushchev and Brezhnev-era apartments and panel high-rise buildings. To replace the dull concrete structures with cramped cold apartments, the concept of a new residential area, cozy and friendly, was developed at the studio.
A typical residential area looks like a square bounded on all four sides by roads with sidewalks, bike paths, car parks and a bus stop. The square contains buildings of three types: small houses (towers with one entrance) in the middle and sectional (with several entrances) and gallery-style (where people enter their apartments through a shared balcony) houses in the corners.

The buildings do not exceed 5–7 floors in hight making the courtyards feel chambered, cozy and visible from the street. The territory contains private gardens (by the windows of first-floor apartments) and common areas, gardens and lawns. People are comfortable in this space: they can see the sky above, nothing is towering over them, they enjoy the beauty around them and feel safe. All the necessary shops and services are nearby.

Cars don’t go inside the residential area, there are only pedestrian paths that can be used by service vehicles when necessary. Parking is located on surrounding streets. If desired, the developer can incorporate underground parking entrances to which can be accommodated by the plan.

The area provides opportunities for rest and recreation: the plan contains children’s and sports grounds, green lawns and gardens. Roofs of the buildings have pleasant rest areas.

Spaces inside the area have varying degrees of privacy. The street, the corner gardens and the central square are places that are visible to and accessible by all people. The shared spaces that include interior grounds and rest areas on the roofs are designed to be used only by the residents of the area. The gardens located by the windows of the first-floor apartments are private territory.

If required, more buildings can be constructed in the area.

The new houses with super comfortable apartments, rooftop terraces and cozy yards completely change the traditional view of residential areas.
The buildings are designed according to the special rules.

Residential building design principles
Everyone has their own vision of an ideal home. We designed houses where different people can find their dream apartment.
Dream home structure
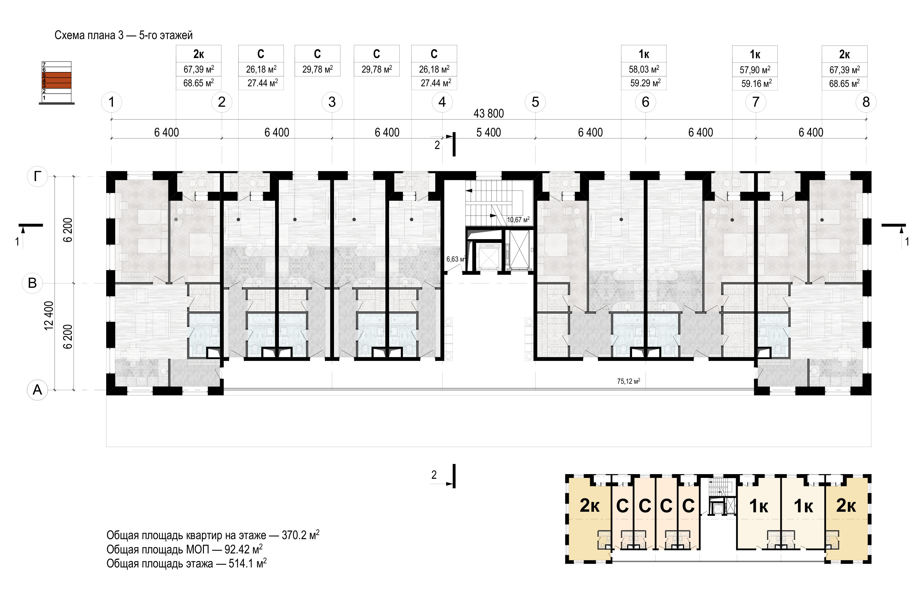
The houses have a frame structure. Location of stairwells and elevators is fixed, but otherwise the column grid allows to plan the space as needed. There are two elevators: a large cargo one and a smaller one for passengers.
The exterior of the buildings is made of cellular concrete, a very warm and durable material. Cellular concrete works as insulation and does not require replacement every 25 years.
Dream home layout
A hall leads to the elevators.
Pipes, and therefore bathrooms are placed along the walls, which allows the rooms to be freely transformed: nothing prevents having a huge living room in the center of an apartment.
According to the plan, the living space is divided into small cells. These cell-boxes are used to form a variety of apartments: studios, small two-room apartments and spacious four-room ones. Typical ceiling height is 3,3 meters (11′).
The height of the first floor is five meters (16′4″). It contains two-level apartments as well as shops, pharmacies, gyms, coworking spaces and other important facilities. The residential zone contains an area for baby strollers, a security desk, control room, concierge room and a recreation zone. Thus, everything needed for a comfortable life is available right inside the building, meaning residents don’t need to leave their yard.
The first floor is constructed at ground level which makes the building easily accessible by wheelchair users. There are two entrances: the street one is open to everyone, while the entrance from the residential area is open only to the residents.
Dream home elements






Dream home apartments









Architecture
The new houses look great in any season. Even though their design is standard, they create a diverse landscape.
The façades are ventilated: waterproof panels are mounted on a special frame and are then painted or covered with brick or fiber reinforced concrete, ensuring the apartments remain warm and quiet. The buildings are painted in light pastel colors with wood and brick styled elements.
Naturally, the new generation houses have decorative grilles for AC units and stained glass windows on the first floor.

Ecology and economics
Each apartment has a horizontal heating system equipped with a heating meter. It means that heat consumption is calculated for each apartment individually.
Public areas are equipped with motion sensors, so that lights come on only when someone is in the area. The buildings have a smart home system which allows the residents to control lighting and the entrance door from their apartment.
A special system collects rain and gray water (from kitchen and bathroom drains) to be used for heating and watering plants in the rooftop gardens. The gardens on the roofs hold water, providing additional insulation and making the city greener. Solar panels can also be installed on roofs.
The price of finished houses depends on finishing materials, the final layout, availability of underground parking and infrastructure on the first floors.
The developed principles were used to create projects for three types of residential houses.
art director
architect
- Svetlana Vasilyeva
editor
- Anna Potapkina
project manager
- Veronika Yankovskaya




Small apartment house







Sectional apartment house







Gallery-style apartment house





