Corporate identity   Website  

Making of the Residence Tyrshova website. Part 1

Overview   Process  

Part I   Part II  

Before we started, we went to the Czech Republic to take a look at the site and the construction plans.

photo 01

The best thing about the Residence is its great location—it has wonderful views over Karlovy Vary from the top floors. We decided that the cityscape panorama would be the theme.

First attempt to visualize the stages of the project—three works of art of different styles.

idea 01

Gradually introducing visitors into the Residence—from the landscape and the balcony view to the interior.

idea 02

Playing with the cityscape view.

idea 03

Adding coats of arms with links to the closest places of interest and stores for future residents.

idea 04

Extending and elaborating the heraldic symbolism.

baroque

Stage-like design idea.

theatre

Developing the knitted pattern idea used for a print ad, part of the coprorate identity package.

knitted

Bringing the idea of living at Residence Tyrshova into the spot light. Creating characters and stories set in one of the apartments.

interior

Then we thought of making a paper website. We built improvised cardboard models of a living room and a garage.

photo 02
photo 03

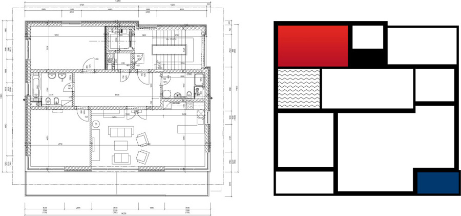
We combined a standard apartment plan and Mondrian’s style to create a painting to hang in the room.

mondrian

Then we refined the room view meant for two pages showing the living room and the balcony.


We threw in some spoken lines, polished the drafts and presented the concept to the client.

concept

Visual joke. The plate reads: “Mini is junk”. And the guy says: “Oh dear, my son’s here.”

joke

Evolution of the sitemap.


Paper design was replaced with illustrations. We created drafts for all rooms selecting the best view angles, choosing to remove the ceiling and the window bar.

illustration sketch 01
illustration sketch 02

We prepared a 3D model of the apartment, rendered the selected angle views, and sent the finished images with descriptions to our illustrator.

illustration sketch 03

First artwork.

illustration 01

Illustrations for every room.

illustration 02

Correcting heights.

illustration 03

Parking the drawn car inside the garage.

illustration 04

Meanwhile, we worked on other page templates, such as room plans, the gallery, etc.

Looking for a way to show three stages on the home page. Nailing the idea of coats of arms with a standard house for each stage.

homepage 01

At that time Stage 1 was nearly finished, Stage 2 was being planned and Stage 3 had nothing but ideas. We modeled a house for the second stage.

second renders

Type design for the three coats of arms.

titles

On the map of Karlovy Vary, places of interest would also be marked with various coats of arms.

arms
spots

Inner pages for each of the stages.

Then we entered speech bubbles. Characters, things in the room and bubbles would move depending on the window width, so we prepared two layouts for each page: for large and small displays.

bubbles

And then all of the above had to be trashed.

rip2

Second try.


Order a design...